티스토리 뷰
목차

안녕하세요😊 리치머니입니다.
오늘은 지난 상편에 이어 노량진뉴타운 5구역 下편, 즉 ‘써밋 더 프레시아’의 재개발 구조와 시세 분석을 자세히 살펴볼게요.
노량진 일대의 변화는 지금 서울에서 가장 주목받는 도시정비 흐름 중 하나인데요. 특히 노량진5구역은 ‘노뉴(노량진뉴타운)’의 알짜 입지이자 써밋 브랜드가 처음 적용되는 지역으로, 향후 가치가 매우 높게 평가되고 있습니다.
🏗️ 재개발 진행 현황 및 단지 구성
현재 노량진5구역은 철거가 한창 진행 중으로, 2026년 착공을 목표로 속도를 내고 있습니다.
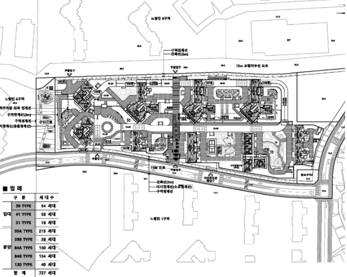
총 9개 동, 최고 29층, 727세대 규모의 중대형 단지로, 하이엔드 브랜드 ‘써밋 더 프레시아’로 탄생할 예정이에요.
세대 구성은 다음과 같습니다.
- 대형(85㎡ 초과): 5.5% (40세대)
- 소형(60㎡ 이하): 41.95% (305세대)
- 임대: 17.88% (130세대)
소형 비율이 높지만, 대형 평형도 40세대 포함되어 있어 다양한 수요층을 아우를 것으로 보입니다.
**주차대수는 총 984대(세대당 1.35대)**로, 요즘 신축 기준보단 다소 적지만, 입지상 대중교통 이용률이 높다는 점을 감안하면 충분한 수준입니다.
조합원은 주로 59㎡·84㎡·120㎡ 타입을 분양받았으며, 이 중 84㎡가 중심 평형입니다.
일반분양 세대는 284세대로 예정되어 있고, 타입별로는 59타입 218세대 / 84타입 69세대 / 120타입 7세대가 포함됩니다.
공사비 상승과 인플레이션을 고려할 때, 예상 분양가는 평당 6천만 원 이상으로 전망됩니다.
착공 후 2026년 말~2027년 초 분양이 예상되는 만큼, 노량진의 새 기준점을 세울 단지가 될 가능성이 높아요.

🌳 단지 설계와 특화 포인트
‘써밋 더 프레시아’는 단순히 아파트 한 단지가 아닙니다.
1·5·8구역을 연결하는 동서 공공보행통로가 단지 중심을 가로지르며, 노량진뉴타운의 ‘생활 축’ 역할을 담당하게 됩니다.
이 보행통로를 통해 인근 학교, 공원, 상가 접근성이 높아지고, 뉴타운 내 유동 인구도 자연스럽게 유입될 거예요.
단지 남쪽에는 근린공원이 조성되어 녹지율을 높였으며, 고급 커뮤니티 시설도 써밋 브랜드답게 구성될 예정입니다.
한강뷰 세대 비율이 높고, 여의도 방향 조망이 확보될 가능성도 커서 조망 프리미엄까지 기대할 수 있습니다.
💰 시세 분석 — ‘노뉴 대장라인’ 형성 중
현재 철거 진행 중인 노량진5구역은 실거래 매물이 거의 없습니다. 다만, 시장에서는 프리미엄 약 16억 전후, 총투 약 25억 원 수준으로 평가받고 있어요.
이는 인근 구역 대비 다소 높지만, 써밋 브랜드 프리미엄과 중심 입지를 감안하면 합리적이라는 분석입니다.
노량진5구역은 1구역(노량진 센트럴자이), 8구역(오티에르), 6구역(아크로 동작) 등과 나란히 위치하며, 향후 ‘써밋·아크로·오티에르’로 이어지는 하이엔드 라인을 형성할 예정이에요.
특히 노량진1구역과 인접해 있어, 완공 후 시세 흐름이 1구역과 거의 동일하게 움직일 가능성이 높습니다.
현재 기준으로 국평(84㎡) 예상 시세는 약 30억 원 내외,
완공 시점인 2030년 전후에는 인플레이션과 신축 프리미엄을 감안해 35억 원 이상도 가능하다는 전망이 많습니다.

🔍 투자 포인트 요약
1️⃣ 서울 한복판의 트리플 역세권 입지 (1호선·9호선·7호선)
2️⃣ 한강 조망 및 여의도 접근성
3️⃣ 노량진 최초 하이엔드 브랜드 ‘써밋’ 도입
4️⃣ 1·6·8구역과의 시너지 — 고급 주거벨트 완성
5️⃣ 2026년 착공 예정, 안정적인 사업 진행 속도
이 다섯 가지 포인트만 봐도 노량진5구역이 왜 ‘노뉴의 핵심 단지’로 불리는지 충분히 이해됩니다.
🏙️ 마무리하며
노량진5구역 ‘써밋 더 프레시아’는 단순한 재개발을 넘어, 동작구의 스카이라인을 바꾸는 프로젝트로 주목받고 있습니다.
이제는 공시촌의 이미지를 벗고, 여의도와 맞닿은 신흥 주거지로 재탄생하는 중이죠.
현재 철거가 진행 중인 만큼, 향후 분양 일정과 평면도, 조망 세대 정보가 공개되면 더 자세한 가치 분석이 가능할 거예요.
여러분이라면, 노량진뉴타운 내에서 어떤 구역을 가장 유망하게 보고 계신가요?